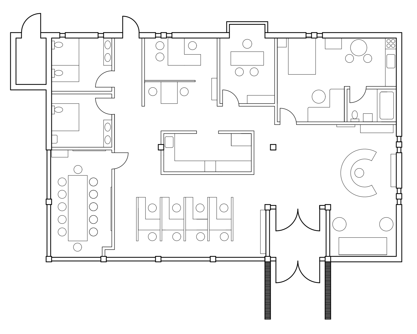
Commercial Project: UCLA Student Career Center


Over the span of four class projects in my Elements of Design class, I designed the UCLA Student Career Center. Students were given an exterior floor plan and the basic dimensions of a building, provided a program, and were then responsible for the project design through. In this exercise, I created multiple floor plans, drafted an axonometric model, utilized presentation techniques and developed a furniture plan for the space.

Program

Secretary 

  • To be located near the Director and Assistant Director in order to monitor access to Director’s Office

  • An operational workspace created through the use of systems furniture with high visibility within the area

  • Minimum of 12 sq. ft. primary work surface

  • Minimum of 4 lin. ft. overhead shelf

  • Computer (20”w, 19”d, 21”h) 

  • Operational task chair and one guest chair

  • Minimum of 6 lin. ft. of lateral files


Coffee Station

  • Minimum of 8 sq. ft. of work counter (not including sink)

  • Base & overhead cabinets

  • Double-burner commercial coffee urn

  • Sink

  • Under cabinet microwave

  • 24” refrigerator


Public Restrooms 

  • Men: two lavatories, one urinal, one toilet stall 

  • Women: two lavatories, two toilet stalls

Director’s Office

  • Double-pedestal, recessed-front, executive desk with matching kneehole credenza for placement of a computer (20”w, 19”d, 21”h)

  • Executive swivel-tilt desk chair and two guest pull-up chairs

  • Minimum of 20 lin. ft. of book shelving


Guest Apartment

  • Living area: comfortable seat for 4-5, coffee table, entertainment center, book shelving

  • Dining area: can be part of living area or kitchen

  • Kitchen: small but serviceable for food preparation, sink, four burner range & oven (20” to 24”w), adequate counter space and cabinets

  • Sleeping area: double bed, night table and lamp, 3-4 lin. ft. of closet space, drawer storage, space for a luggage rack

  • Bathroom: lavatory, toilet, shower, small linen closet 


Reception Area

  • Uninterrupted work space at least 12 sq ft.

  • Transaction surface, 40” FF

  • Standard office typewriter

  • Computer (20”w, 19”d, 21”h)

  • Return surface for typewriter & computer

  • Two box/file drawer pedestals 

  • Secretarial task chair 

  • 12 lin. ft. of lateral files 

  • Computer printer (19”w, 19”d, 10”h) 

  • Guest seating for 5-6 

  • Coat storage for 30 people 

  • Wall-hung literature rack (40”w, 60”h, 5”d)

Assistant Director 

  • A management workstation created through the use of systems furniture, partition panels not to exceed 65” in height

  • 12-15 sq. ft. primary work surface plus return (at least 8 sq. ft.) and two or three box/file drawer pedestals

  • Computer (20”w, 19”d, 21”h)

  • Management task chair and two guest pull-up chairs 


Seminar Room 

  • Conference seminar seating for 12 at one central table 

  • Beverage serving surface with pen & paper storage below it 

  • 6’-0” wide projector screen 

  • Tackable wall surface minimum of 8 lin. ft.


Interview Stations 

  • Four interview stations created through use of systems furniture, partition panels not to exceed 65”h 

  • Primary work surface and return to provide 18-20 sq. ft. per station 

  • Two box/file drawer pedestals 

  • Minimum of 4 lin. ft. of overhead storage per station 

  • Computer (20”w, 19”d, 21”h) per station 

  • 48 lin. ft. of lateral files to be accesed by all stations 

  • One operational and one guest chair per station


Work Area

  • Freestanding copier (44”w, 27”d, 38”h)

  • Storage cabinet (36”w, 18”d, 21”h)

  • Minimum 6 lin. ft. of lateral files

Hand Drafted Floor Plan

Hand Drafted Furniture Plan

Axonometric Model

AutoCAD Furniture Plan Sketch

Presentational Diagrams

Selected Room Specifics